Taman Wira Permai 9

Taman Wira Permai 9, an elegant housing development located in the ancient royal city of Klang in Selangor, is developed by Setia Jutamas Sdn. Bhd. Known for its heritage, Klang is a major hub for seafood lovers and is also home to several shopping malls and historical landmarks. The new residential project is nestled magnificently in this bustling town, ideally situated in close proximity to Jln Kebun Nenas 7A/KS8/, in the vicinity of Kampung Batu Tujuh. The pricing for these beautiful homes commences from RM620,000, supplementing the affordable luxury that each abode offers.
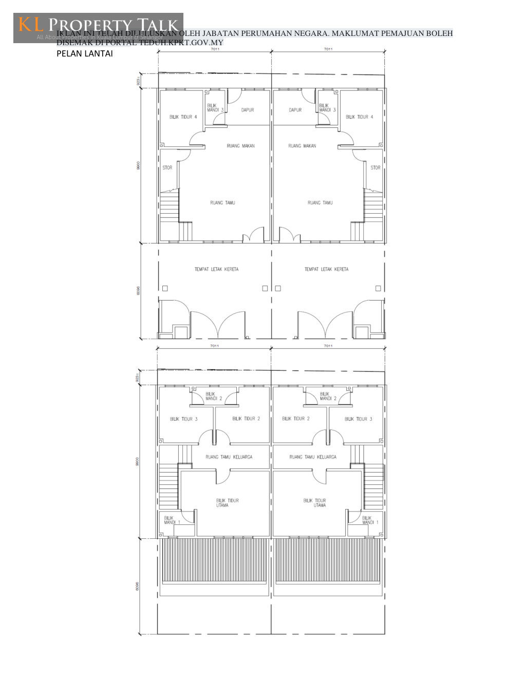
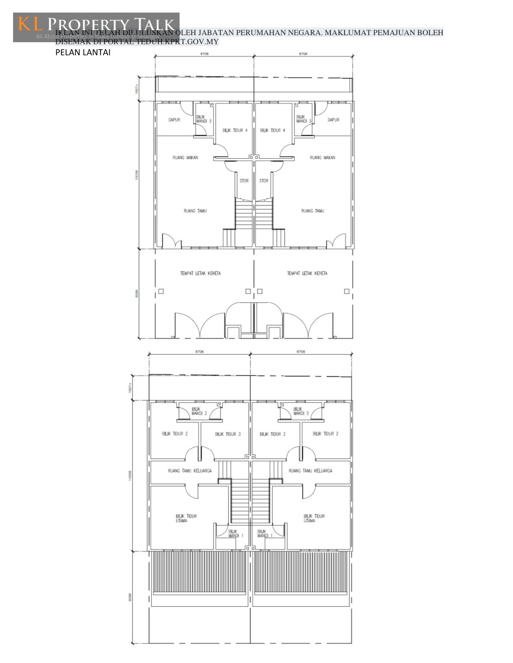
Taman Wira Permai 9 comprises of 18 units of 2-storey terrace houses, designed to cater to a variety of homeowners. Each unit, built to meet the high standards set by the developer, is a testament to a seamless blend of modern amenities and timeless luxury. Built with a keen eye on detailing and a fine understanding of the homebuyer’s needs, these homes re-define comfortable and elegant living. The strategic location, coupled with the fact that these are terrace houses, enables residents to experience the perfect balance between urban living and personal space. In conclusion, Taman Wira Permai 9 offers an exceptional living experience in the heart of Klang.
Project Name: Taman Wira Permai 9
Location: Klang
Project Type: Terrace
Built-up Area: (to be confirmed)
Total Units: 18
Indicative Price: RM620,000
Developer:
Setia Jutamas Sdn. Bhd.












POST YOUR COMMENTS