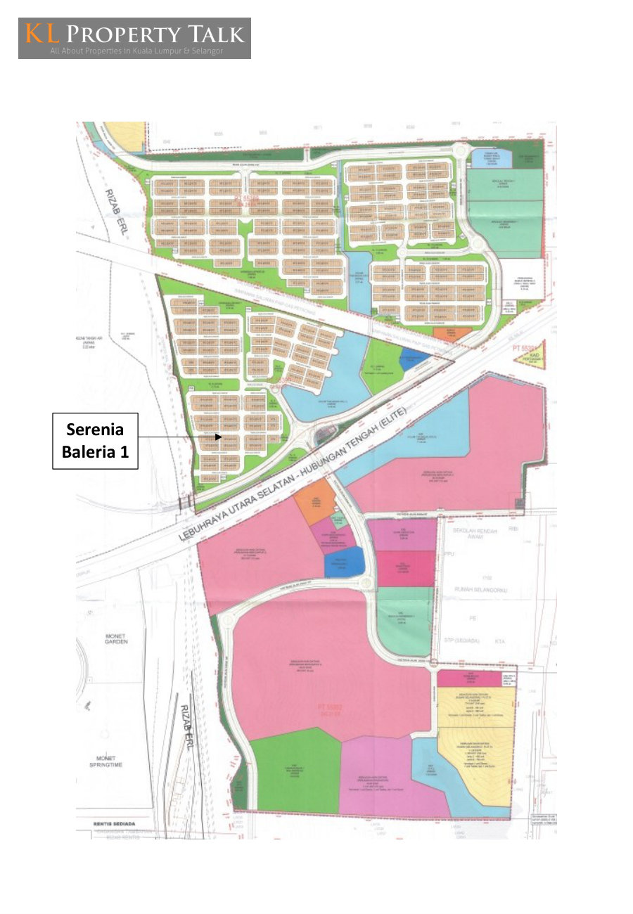
Serenia Baleria 1

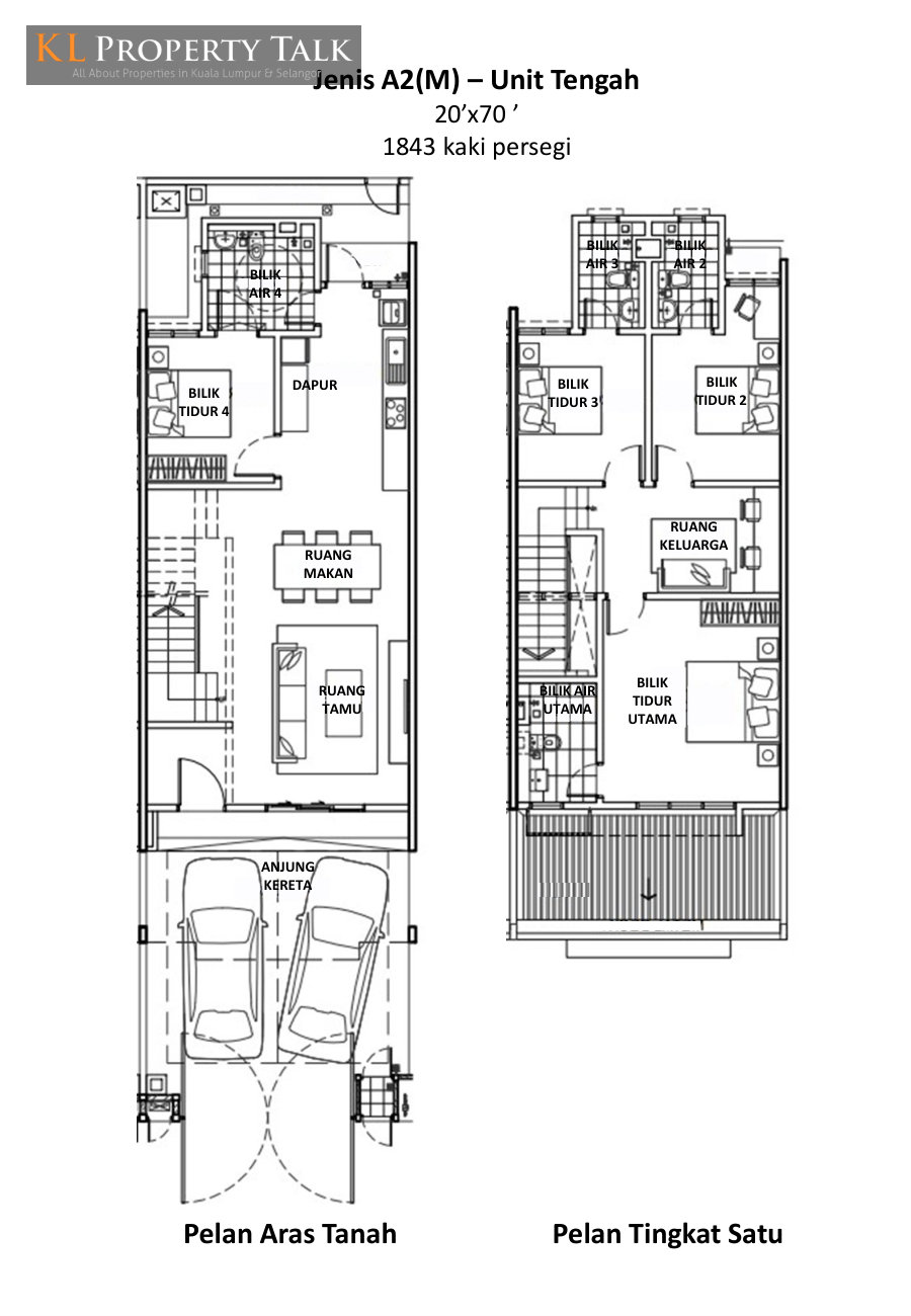
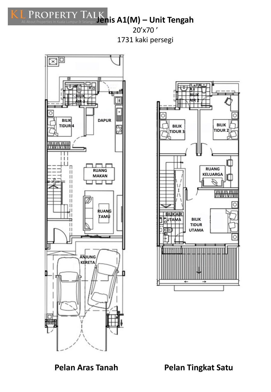
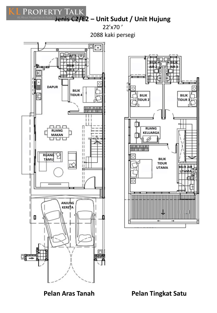
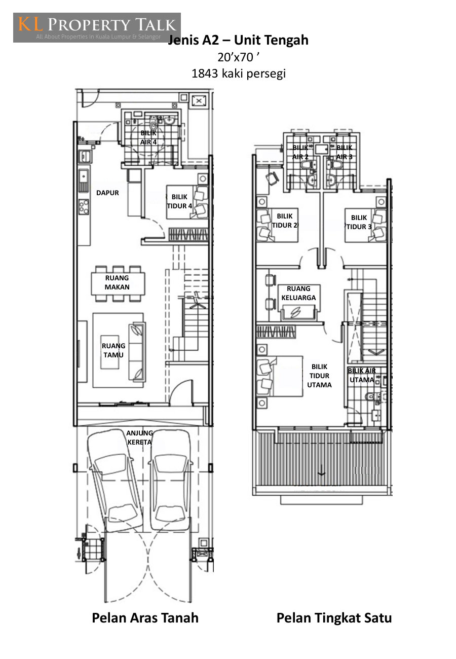
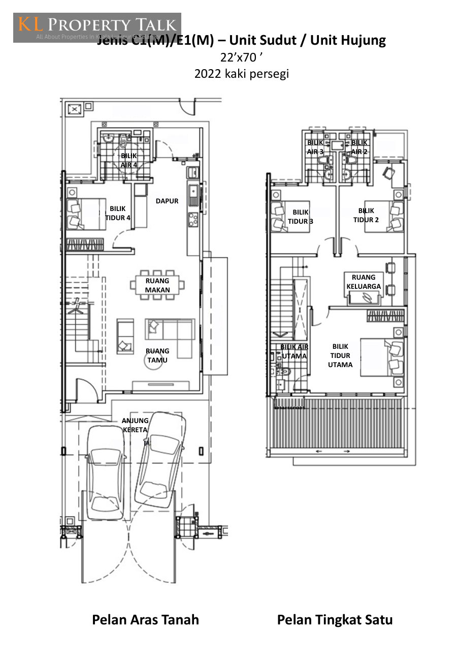
Serenia Baleria 1, developed by Sime Darby Property (Serenia City) Sdn. Bhd, is nestled in the tranquil heart of Dengkil, Selangor. This residential offering presents a resort-like living experience nestled amid lush green surroundings, with the price starting at an indicative RM809,888. The property boasts an array of terrace homes and integrative floor plans designed to cater to the daily living needs and leisurely retreat of homeowners.
The development holds 211 units spread across two storeys within each home, providing ample living space in this suburban sanctuary. The community is characterized by its serenity, juxtaposed against its seamless connectivity to crucial parts of Selangor. With Selangor’s thriving urban center just a short drive away, residents of Serenia Baleria 1 are conveniently placed within the reach of amenities without compromising the tranquillity of their living environment. This blend of accessible yet retreat-like living truly sets Serenia Baleria 1 apart as a precious gem within Sime Darby Property’s portfolio.
Project Name: Serenia Baleria 1
Location: Dengkil
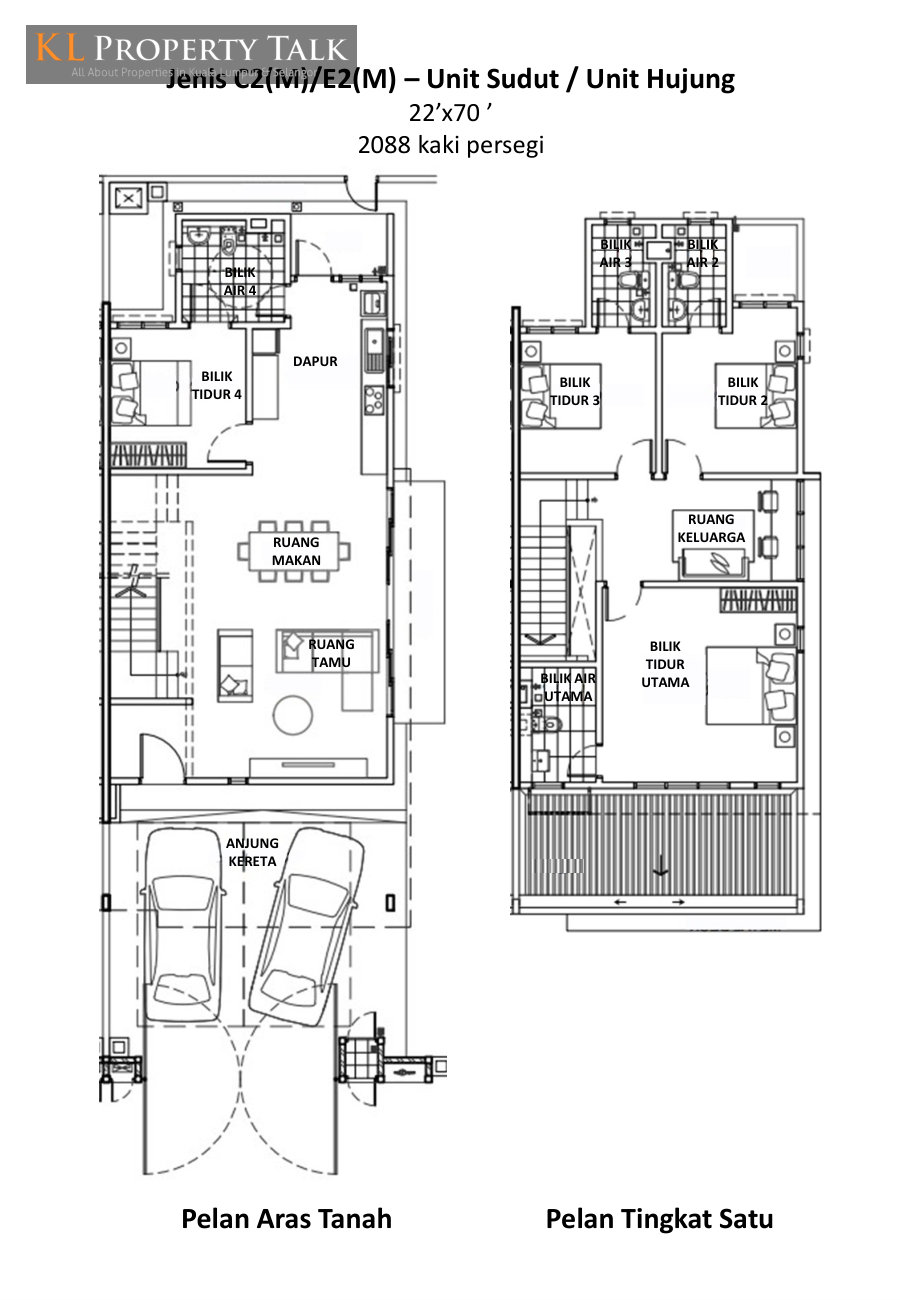
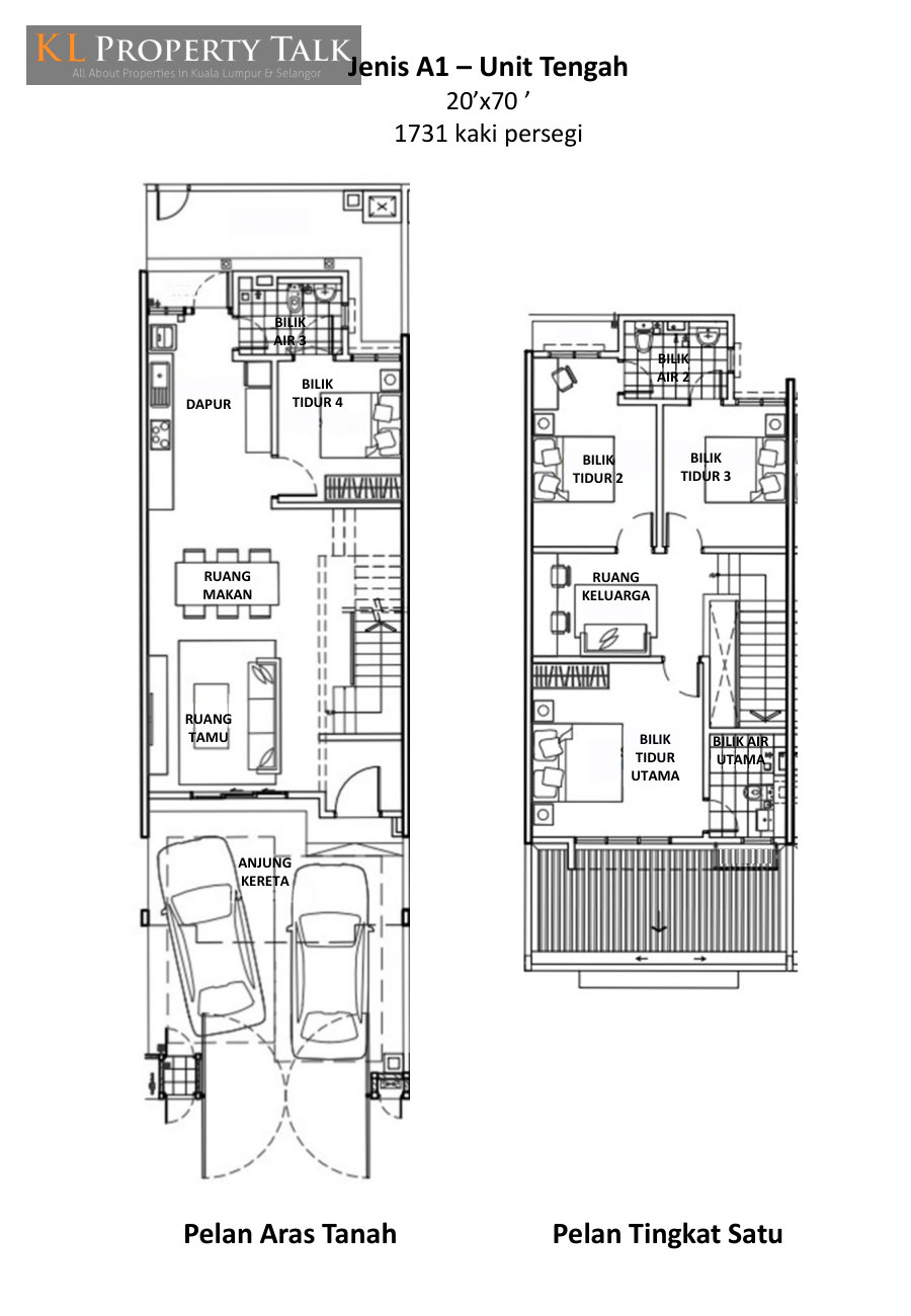
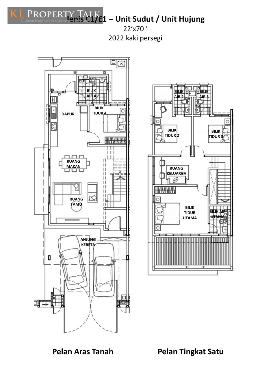
Project Type: Terrace
Built-up Area: (to be confirmed)
Total Units: 211
Indicative Price: RM809,888
Developer:
Sime Darby Property (serenia City) Sdn. Bhd.





















POST YOUR COMMENTS